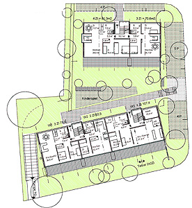
Die neue Bebauung reagiert auf die Verkehrsbelastung der Sudetenstraße mit der vorgefundenen Typologie der Straßenrandbebauung. Die Wohnungen in der geschlossenen als Schallschutz wirksamen Bebauung sind nach Westen orientiert.
Die Gebäude werden in konventioneller Bauweise unter Berücksichtigung einer ökologischen Materialauswahl errichtet - massive Wärmedämmziegel oder alternativ Verbundsteine aus Kalksand und Mineralschaum (Twinstone). Einfache Baukörper und die Reduzierung auf jeweils eine Erschließung (Aufzug) pro Wohngruppe dienen der Wirtschaftlichkeit.
Es wird ein Passivhausstandard mit kontrollierter Wohnraumlüftung angestrebt. Eine thermische Solaranlage unterstützt die zentrale Wärme- und Warmwasserversorgung.
Bewertung des Presigerichts:
Das Planungskonzept zeigt eine klare Baustruktur, die sich am Verlauf der Sudetenstraße orientiert und mit einer nach Süden ausgerichteten Bebauung angenehm gestaltete Höfe bildet. Über ein Gemeinschaftshaus und mehrere Spielflächen wird ein gut nutzbarer Aufenthaltsbereich geschaffen. Die optimal nach Süden orientierten Wohnungen werden durch einen schmalen Lärmschutzbaukörper hervorragend abgeschirmt. Im EG sind die notwendigen Nebenräume sinnvoll untergebracht; die in den Obergeschossen liegenden kleinen 2-Zimmer-Wohnungen sind gut an den Erschließungskern angebunden, an den auch die Laubengänge anschließen.











